In the year 2000 our house has been finished in a high quality execution.
We have preferred clean lines in architecture.
Us offer the space design and the excellent equipment a residential comfort.
Construction and choice of materials are high quality and bio-ecology.
The property with 16,500 m² has about 360 olive trees !
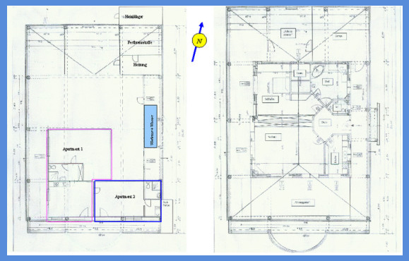
You can find on the ground floor:
– a living room about 50 m² with open black-granite-fireplace,
– a “conservatory / winter garden” of 52 m²,
– a bedroom,
– a bathroom with large-corner-bathtub and a shower and toilet,
– the sauna,
– a guest toilet,
– a well equipped kitchen with brand equipment / appliances,
– a separate-“hobby room” (perhaps as an office? ) and
– a double garage with direct access to the house.
In the basement there are
two standalone, separate apartments, which can be reached by a wide exterior staircase.
Apartment 1: with about 52 m² living space, with living room / kitchen, bedroom, shower / WC
Apartment 2: with about 32 m² living space with kitchenette, shower / toilet.
There is another space in the basement, approximately about 200 m² that can be used more for additional living space or hobby room.
The attic is prepared with about 100 m² living space upgradable.

ground plan
Erdgeschoss.pdf | Souterrain.pdf
All windows are high quality aluminum sliding windows with insulated glazing etc..
A central oil heating boiler (and an additional solid fuel boiler) for convenient underfloor heating in the ground floor, the other rooms, the hot water tank and the pool.
The solar system provides hot water to a 300-l Buderus boiler.
Double walls enveloped the whole very well insulated house, both in summer and in winter.
The marble mosaic terraces with about 145 m² are connected to the east, south and west throughout
All ground floor rooms are equipped with with highly polished marble floor, and have a ceiling height of 2.70 m and wide doors.
Use the heated swimming pool in yin-yang shape, which has also a counter swimming system and massage jets.
Us provide the satellite system with (now) Astra and Hotbird impeccable TV + radio reception.
Four separate phone lines are available and also a DSL connection, ISDN is optional addable.